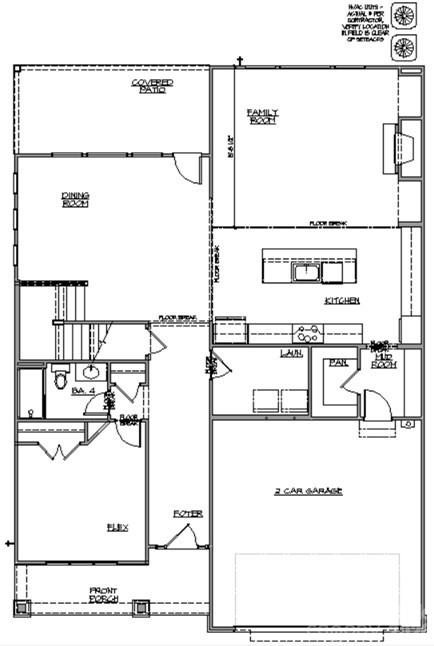
Open layout w/ Craftsman-style exterior w/ HardieĀ® siding & stone accents. 1st floor guest bed & bath w/walk-in shower. Large Kitchen features quartz counters, tile backsplash, 42" grey painted cabs, GE SS app w/ Profile 36" gas cooktop, wall oven/microwave, extraction hood vented outside, large under-mount sink, & walk-in pantry. Family room gas fireplace flanked by niches; Dining area is wrapped in windows. Rear covered porch which overlooks a tree buffer. Mudroom drop zone. Upstairs is a large open Loft for extra gathering space, and 3 generously-sized secondary bedrooms, w/ a Jack & Jill bath. Large Premier Suite w/ tray clt, an oversized WIC & bath w/ soaking tub, separate tiled shower, quartz counter. All bathrooms include dark grey cabinets & tiled floors. LVP flooring on most of the 1st floor & oak treads on stairs. Energy-saving features include tankless gas hot water heater, attic tent for pull-down stairs, & radiant barrier sheathing. Community pool, clubhouse & dog park.
| MLS#: | 4290246 |
| Price: | $586,394 |
| Square Footage: | 3398 |
| Bedrooms: | 5 |
| Bathrooms: | 4 |
| Acreage: | 0.17 |
| Year Built: | 2025 |
| Type: | Single Family Residence |
Based on information submitted to the MLS GRID as of 2026-03-08 00:00:00. All data is obtained from various sources and may not have been verified by broker or MLS GRID. Supplied Open House Information is subject to change without notice. All information should be independently reviewed and verified for accuracy. Properties may or may not be listed by the office/agent presenting the information. Some IDX listings have been excluded from this website.
Contact An Agent:


























