2701 Florida Avenue
$220,000 Under Contract - No Show
Subdivision: Royal Oaks
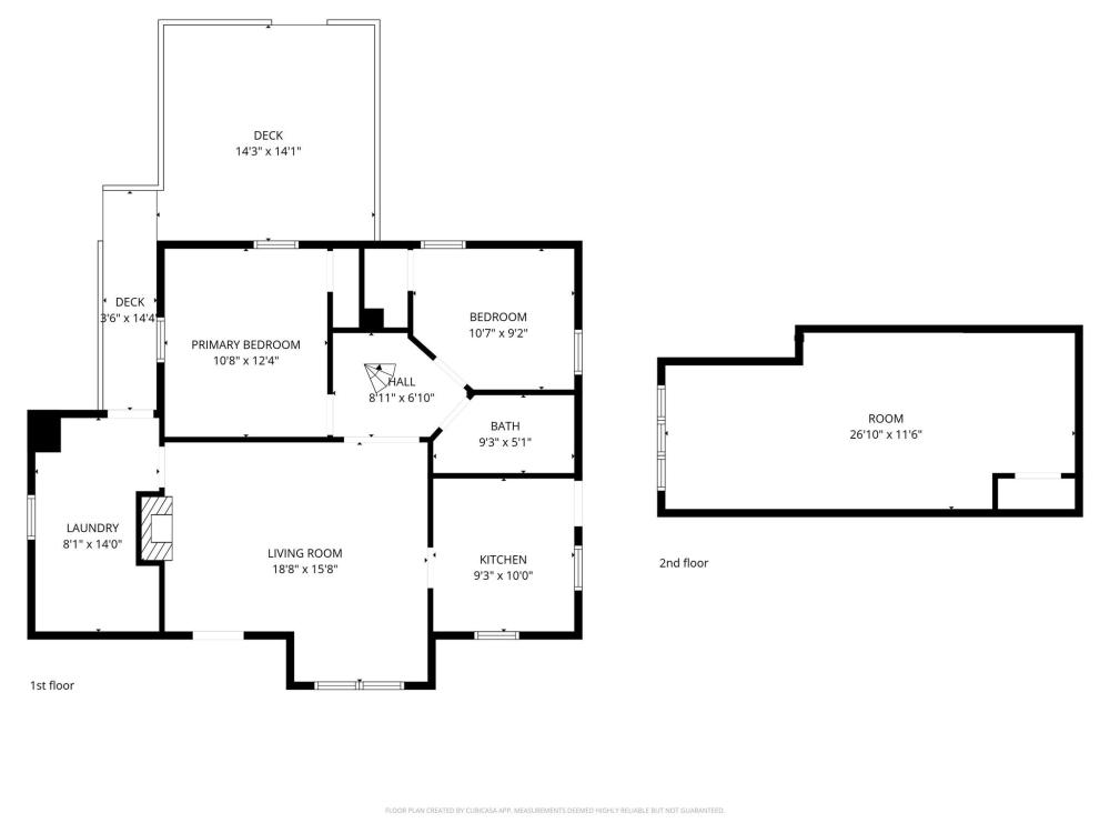
You will love this charming, corner lot home that is conveniently located to Hwy 29, I-85 & Downtown Kannapolis! Enjoy the deck overlooking the large FENCED in backyard. Mud room right off the back entrance includes washer and dryer. Kitchen has stainless steel appliances and living room has a beautiful brick fireplace. Lovely original hardwoods throughout. 300+ sq ft of unheated sq ft upstairs perfect for storage or add a mini split and have more finished living space! Don't miss out on this great home!
Back to Property List
Basic Information
Listing courtesy of: EXP Realty LLC - hayley.lewin@exprealty.com
| MLS#: | 4350556 |
| Price: | $220,000 |
| Square Footage: | 860 |
| Bedrooms: | 2 |
| Bathrooms: | 1 |
| Acreage: | 0.25 |
| Year Built: | 1950 |
| Type: | Single Family Residence |
Based on information submitted to the MLS GRID as of 2026-03-09 12:00:00. All data is obtained from various sources and may not have been verified by broker or MLS GRID. Supplied Open House Information is subject to change without notice. All information should be independently reviewed and verified for accuracy. Properties may or may not be listed by the office/agent presenting the information. Some IDX listings have been excluded from this website.
Contact An Agent:
























