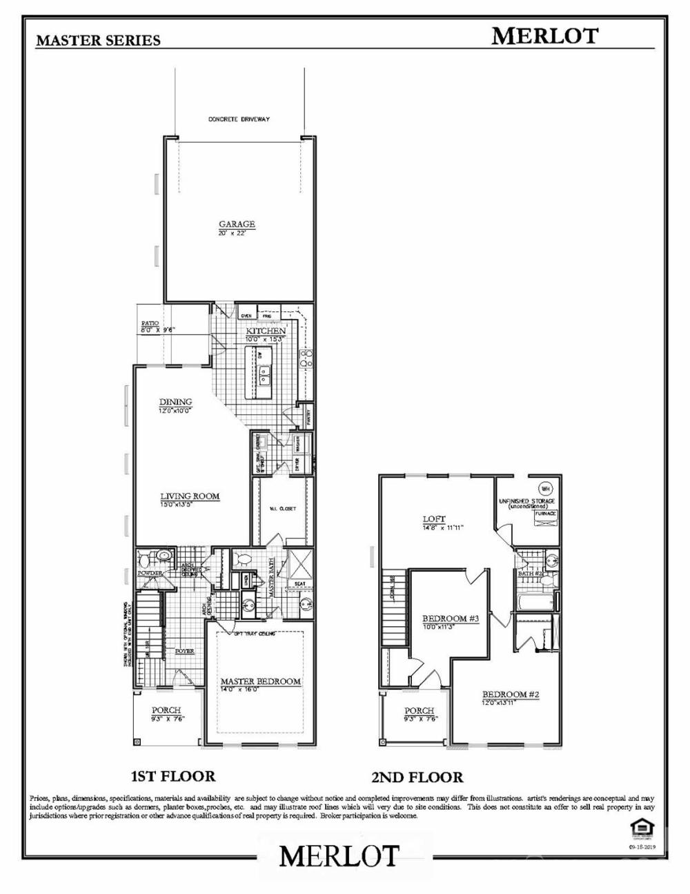
One of the final end-unit opportunities at The Villas at Tucker’s Walk. The Merlot stands out immediately with its highly desirable covered porch-over-porch design. This 2-story townhome offers a rare primary suite on the main level, combining everyday convenience with architectural character you won’t find in most new construction townhomes. As an end unit, enjoy additional natural light and added privacy. With 3 bedrooms and 2.5 baths, the open-concept main level features 9-foot ceilings and a gourmet kitchen with wall oven, cooktop, granite countertops, tile backsplash, and a large island that flows seamlessly into the living and dining areas. The primary suite includes a tiled shower and convenient walk-through access to the laundry room. Upstairs, two secondary bedrooms and a spacious loft provide flexibility for guests, a home office, or a second living area. The second covered porch off the upper bedroom creates the perfect space for morning coffee or evening relaxation, a feature buyers consistently love. Lawn care and exterior maintenance are included in the HOA for easy, low-maintenance living. Located at Poplar Tent Road & Harris Road in the highly sought-after Cox Mill High School district. Rear-load 2-car garage. Dual-zone Lennox HVAC. 50-gallon energy-efficient gas water heater. 2-10 Home Warranty included. Construction is underway — secure your home now and personalize your interior selections. Estimated completion August 2026. Photos are representative.
| MLS#: | 4341078 |
| Price: | $444,900 |
| Square Footage: | 1954 |
| Bedrooms: | 3 |
| Bathrooms: | 2.1 |
| Year Built: | 2026 |
| Type: | Townhouse |
Based on information submitted to the MLS GRID as of 2026-04-27 18:00:00. All data is obtained from various sources and may not have been verified by broker or MLS GRID. Supplied Open House Information is subject to change without notice. All information should be independently reviewed and verified for accuracy. Properties may or may not be listed by the office/agent presenting the information. Some IDX listings have been excluded from this website.
Contact An Agent:

























