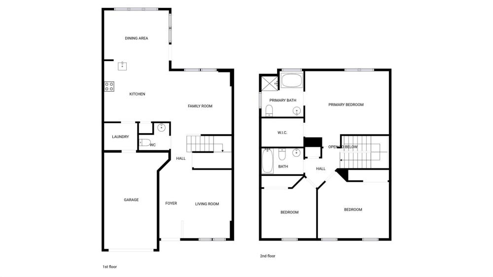
Welcome to 7892 Mariners Pointe Cir, a home that exudes elegance and sophistication. The heart of this home is the kitchen, boasting a large island that provides ample space for meal preparation and entertaining. The kitchen's aesthetic is further enhanced by an accent backsplash, adding a touch of modern flair. Stainless steel appliances are included, ensuring a sleek and contemporary look. The primary bathroom is a haven of relaxation, featuring double sinks for convenience and comfort. A separate tub and shower in the primary bathroom provide options for either a quick rinse or a leisurely soak. This home is a perfect blend of style and functionality, waiting for you to make it your own.. Included 100-Day Home Warranty with buyer activation
| MLS#: | 4343793 |
| Price: | $285,000 |
| Square Footage: | 1729 |
| Bedrooms: | 3 |
| Bathrooms: | 2.1 |
| Year Built: | 2002 |
| Type: | Townhouse |
Based on information submitted to the MLS GRID as of 2026-03-09 18:00:00. All data is obtained from various sources and may not have been verified by broker or MLS GRID. Supplied Open House Information is subject to change without notice. All information should be independently reviewed and verified for accuracy. Properties may or may not be listed by the office/agent presenting the information. Some IDX listings have been excluded from this website.
Contact An Agent:















