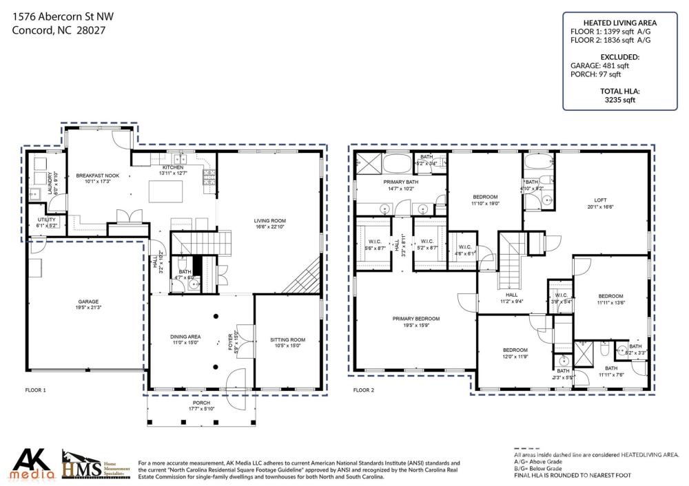
Move-In Ready Home in Moss Creek Reserve! This beautifully upgraded 4BR/3.5BA home in Concord’s sought-after Moss Creek Reserve offers elegance, space, and unbeatable amenities. Enjoy soaring 10-ft ceilings on the main level, 9-ft ceilings upstairs, 8-ft doors and crown molding throughout. The main floor features ceramic tile flooring, a formal dining room, private office/flex space with French doors, and a spacious family room with gas fireplace. The open-concept kitchen includes stainless steel appliances, gas stove, large center island, and built-in workstation. Upstairs you will find 4 bedrooms, 3 full bathrooms, and a large bonus/media room. The primary suite features dual walk-in closets, soaking tub, separate shower, and double vanities. Enjoy outdoor living with a wooded, beautifully landscaped, fenced backyard, oversized stamped concrete patio with firepit. Recent Updates: New downstairs HVAC system (Nov 2025), roof (2021), tankless water heater (2021), dual-zone HVAC upstairs (2019), whole-house water filter (2020), smoke/CO detectors replaced (2025) and outdoor storage shed (2020). Home warranty included through April 2027. Wired for hot tub. Google Fiber ready. Located in the award-winning Cox Mill High School district with Odell Elementary and Harris Road Middle schools in the community. This home is located less than a 5-minute walk to resort-style amenities including Olympic-size pool + 3 others, fitness center, clubhouse, playground, tennis, pickleball, and basketball courts, walking trails. Convenient to I-85 and I-77.
| MLS#: | 4300273 |
| Price: | $610,000 |
| Square Footage: | 3235 |
| Bedrooms: | 4 |
| Bathrooms: | 3.1 |
| Acreage: | 0.24 |
| Year Built: | 2005 |
| Type: | Single Family Residence |
Based on information submitted to the MLS GRID as of 2026-03-09 18:00:00. All data is obtained from various sources and may not have been verified by broker or MLS GRID. Supplied Open House Information is subject to change without notice. All information should be independently reviewed and verified for accuracy. Properties may or may not be listed by the office/agent presenting the information. Some IDX listings have been excluded from this website.
Contact An Agent:














































