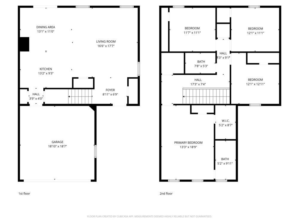
Space. Location. Opportunity. Just 12 minutes from Uptown Charlotte, this stunning 4-bedroom, 2.5-bath home delivers the lifestyle you’ve been searching for without sacrificing comfort or value. Tucked inside a quiet neighborhood yet incredibly close to the energy of the city, this two-story beauty welcomes you with an airy, open layout designed to feel both expansive and inviting. The spacious main level flows effortlessly, creating the perfect setting for entertaining, hosting holidays, or simply enjoying everyday life. At the heart of the home, the kitchen makes a statement featuring granite countertops, tile flooring, and a center island that anchors the space beautifully. Whether you’re gathering with friends or enjoying a quiet morning coffee, this is where memories are made. Upstairs, retreat to generously sized bedrooms and a private primary suite complete with a dual vanity ensuite and a walk-in closet. And let’s talk about storage multiple closets throughout the home offer the kind of space and organization that’s hard to find at this price point. With a two-car garage and the refrigerator, washer, and dryer included, this home is truly move-in ready. Come see why this one feels different. Schedule your private tour and prepare to fall in love.
| MLS#: | 4335185 |
| Price: | $360,000 |
| Square Footage: | 1925 |
| Bedrooms: | 4 |
| Bathrooms: | 2.1 |
| Acreage: | 0.09 |
| Year Built: | 2021 |
| Type: | Single Family Residence |
| Virtual Tour: | Click here |
Based on information submitted to the MLS GRID as of 2026-03-17 12:00:00. All data is obtained from various sources and may not have been verified by broker or MLS GRID. Supplied Open House Information is subject to change without notice. All information should be independently reviewed and verified for accuracy. Properties may or may not be listed by the office/agent presenting the information. Some IDX listings have been excluded from this website.
Contact An Agent:

































