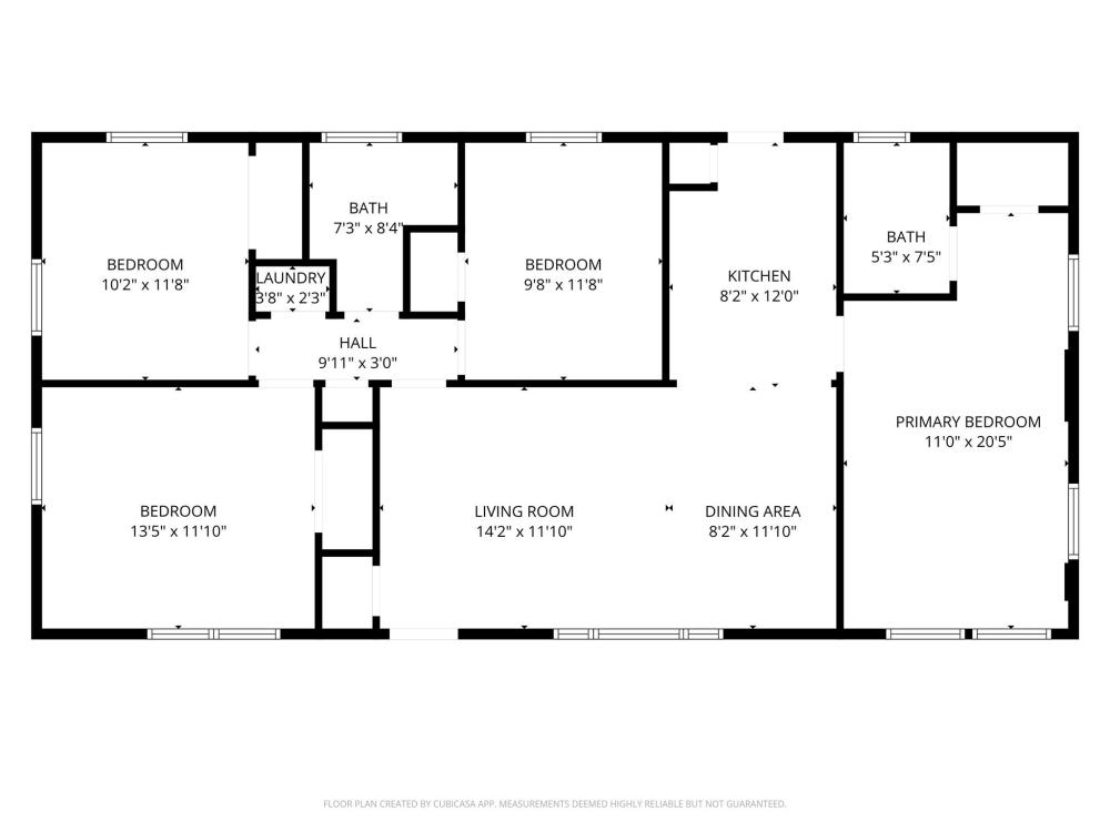
Spacious 4-bedroom, 2-bath home situated on a desirable 0.25-acre corner lot in Northwest Charlotte. The corner setting provides additional yard space, added privacy, and strong curb appeal. Inside, you’ll find a functional layout with generous living and dining areas, offering flexibility for everyday living and entertaining. The kitchen features white cabinetry, ample counter space, stainless appliances, and open shelving. The bedrooms are well-sized and provide options for guests, home offices, or flex space. Two full bathrooms serve the home comfortably. The covered front porch adds charm and creates a welcoming entry, while the quarter-acre lot offers outdoor space with room to personalize or expand your vision. Located in the 28216 corridor, this property provides quick access to I-77 and I-85, making commuting to Uptown Charlotte convenient. Just minutes from Hornets Nest Park, Northlake shopping and dining, and the U.S. National Whitewater Center, this area continues to see growth and redevelopment activity. A solid opportunity on a corner lot in a convenient and growing Charlotte location.
| MLS#: | 4350448 |
| Price: | $259,000 |
| Square Footage: | 1014 |
| Bedrooms: | 4 |
| Bathrooms: | 2 |
| Acreage: | 0.25 |
| Year Built: | 1959 |
| Type: | Single Family Residence |
| Virtual Tour: | Click here |
Based on information submitted to the MLS GRID as of 2026-04-28 06:00:00. All data is obtained from various sources and may not have been verified by broker or MLS GRID. Supplied Open House Information is subject to change without notice. All information should be independently reviewed and verified for accuracy. Properties may or may not be listed by the office/agent presenting the information. Some IDX listings have been excluded from this website.
Contact An Agent:

















