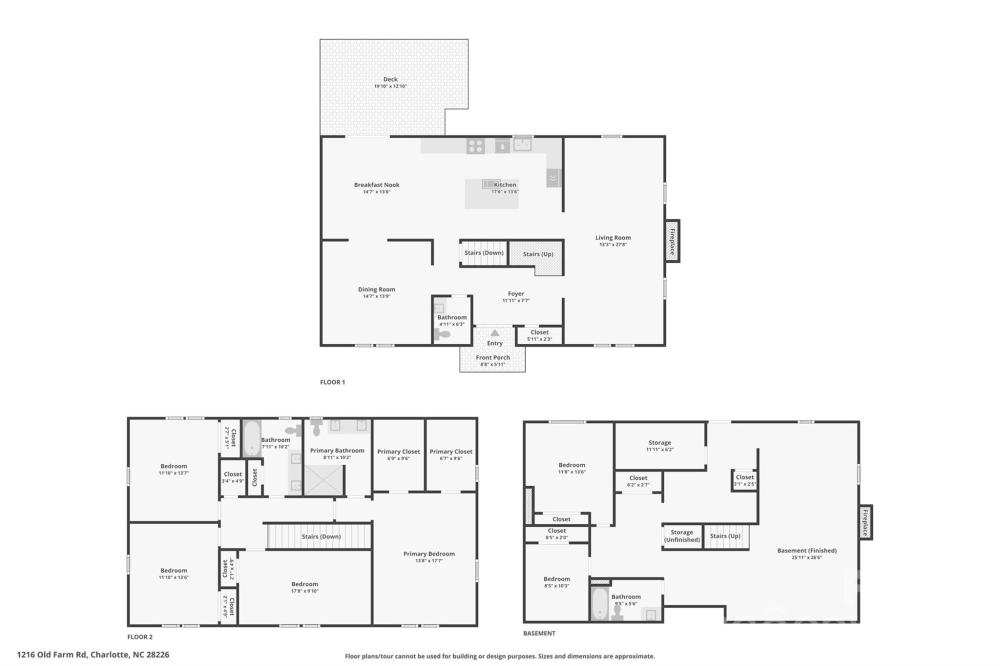
Welcome to 1216 Old Farm Rd, a timeless brick Colonial nestled on a beautifully established .44-acre homesite in one of South Charlotte’s most desirable neighborhoods. Remodeled with a refined, elevated feel, this residence blends classic architecture with modern updates and enduring curb appeal—an exceptional opportunity for buyers seeking space, character, and a premier location. Inside, the home unfolds across more than 4,000 square feet of light-filled living space designed for both elegant entertaining and everyday comfort. The thoughtfully updated interiors offer multiple gathering areas, including formal and casual living spaces, a warm family room anchored by a fireplace, and well-proportioned rooms throughout that create a sense of sophistication without sacrificing livability. The kitchen sits at the heart of the home, offering seamless flow to dining and living areas and making hosting effortless. Upstairs, the spacious bedrooms and baths provide privacy and comfort, including a primary suite with room to truly unwind. A rare finished basement—an uncommon feature for this area—adds incredible flexibility and expands the lifestyle potential even further, ideal for a media room, home gym, executive office, or recreation space. Outdoors, the expansive lot provides a serene setting for future outdoor living enhancements, gardens, or entertaining under the trees. Ideally located just minutes from SouthPark, Cotswold, Strawberry Hill, and the Arboretum, this home delivers the rare combination of established neighborhood prestige and everyday convenience, with easy access to Charlotte’s best shopping, dining, and amenities.
| MLS#: | 4344742 |
| Price: | $1,050,000 |
| Square Footage: | 3995 |
| Bedrooms: | 5 |
| Bathrooms: | 3.1 |
| Acreage: | 0.43 |
| Year Built: | 1967 |
| Type: | Single Family Residence |
| Virtual Tour: | Click here |
Based on information submitted to the MLS GRID as of 2026-03-10 12:00:00. All data is obtained from various sources and may not have been verified by broker or MLS GRID. Supplied Open House Information is subject to change without notice. All information should be independently reviewed and verified for accuracy. Properties may or may not be listed by the office/agent presenting the information. Some IDX listings have been excluded from this website.
Contact An Agent:


































