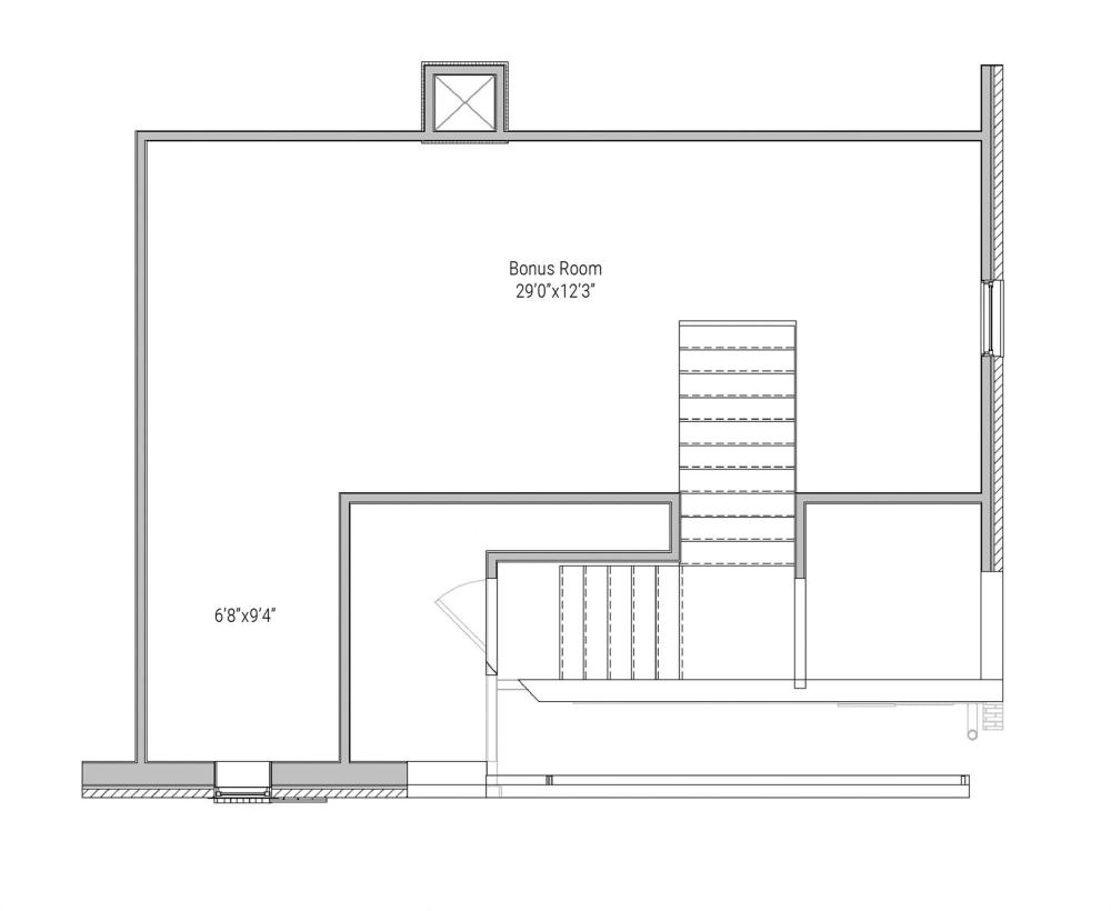
Located within the prestigious, gated community of Heydon Hall, this exceptional residence is one of only 14 homes offered in the community’s final phase. Buyers may choose from six thoughtfully curated floor plans, each available with multiple architectural elevations. The open-concept design features a great room with a statement fireplace and custom built-ins, seamlessly connecting to a chef’s kitchen anchored by an oversized island and complemented by a well-appointed scullery with sink.The main-level primary suite offers both comfort and privacy, with the convenience of main-level laundry and a mudroom outfitted with custom cabinetry. Upstairs, three additional bedrooms each include en-suite baths, along with attic storage above the garage—optionally finishable to provide an additional 423 square feet of living space.
| MLS#: | 4343588 |
| Price: | $2,188,245 |
| Square Footage: | 3301 |
| Bedrooms: | 4 |
| Bathrooms: | 4.1 |
| Acreage: | 0.17 |
| Year Built: | 2026 |
| Type: | Single Family Residence |
Based on information submitted to the MLS GRID as of 2026-04-28 00:00:00. All data is obtained from various sources and may not have been verified by broker or MLS GRID. Supplied Open House Information is subject to change without notice. All information should be independently reviewed and verified for accuracy. Properties may or may not be listed by the office/agent presenting the information. Some IDX listings have been excluded from this website.
Contact An Agent:


