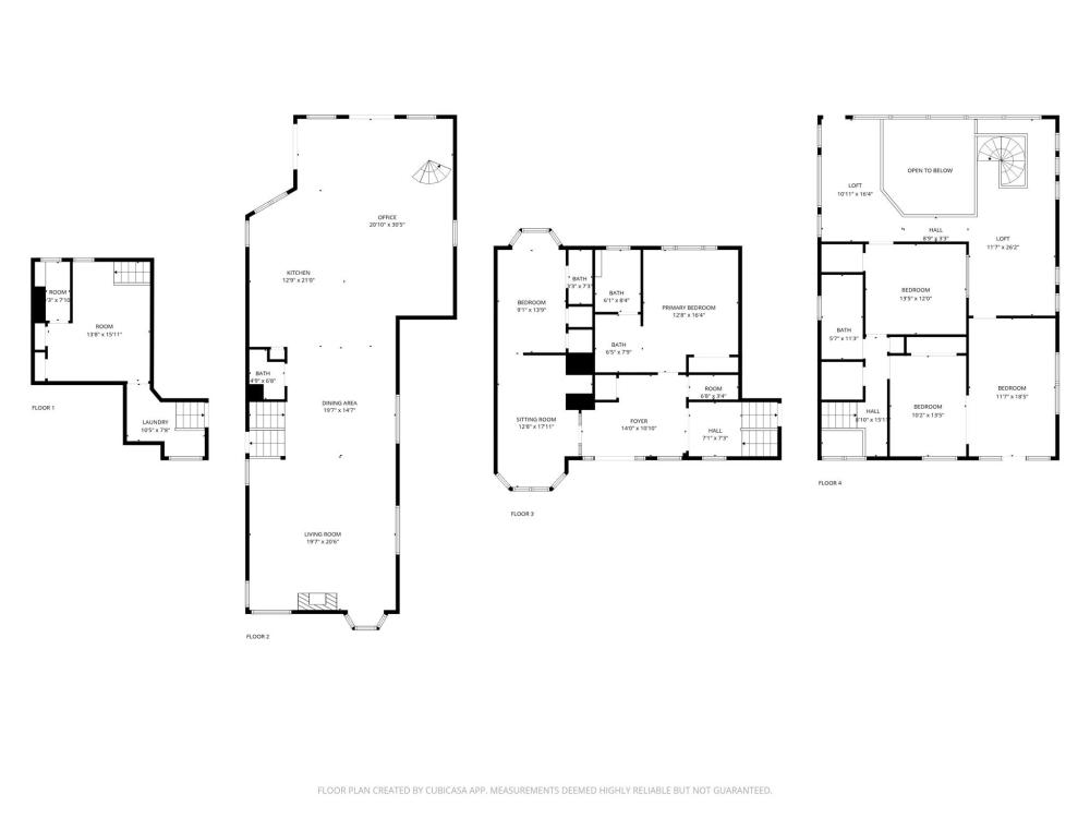
PRICE ADJUSTMENT Welcome to 223 Millwood Ln — a beautifully crafted home in the heart of Charlotte, designed for both elegance and comfort. This spacious 5-bedroom, 3.5-bath residence is filled with natural light and thoughtful architectural details that set it apart. Step inside through solid wood French doors with beveled glass and be greeted by ceramic tile flooring with radiant heat throughout the kitchen, living, and dining areas. Gorgeous solid oak trim and molding flow seamlessly through the home, while rare stained-glass window boxes in the kitchen add unique charm. The chef’s kitchen is truly a showstopper, featuring granite countertops with bar seating, three sinks, garbage disposal, and a built-in office/computer nook with granite surface. A spiral wrought iron staircase off the kitchen provides stylish access upstairs. The inviting living area is anchored by a gas log fireplace, while the primary suite offers a private retreat with a dual vanity, walk-in shower with tile surround, and generous storage. Two of the bedrooms enjoy large tea/sitting areas, perfect for relaxation, and the basement level provides a private bedroom with additional storage space. Outdoor living area in need of a little TLC presents a sprawling patio featuring fountains, fireplaces, and multiple covered sitting areas — ideal for entertaining or unwinding in a private oasis. This home blends craftsmanship, functionality, and timeless design — a rare opportunity in a desired Charlotte location. Schedule your showing today!
| MLS#: | 4306784 |
| Price: | $1,200,000 |
| Square Footage: | 4096 |
| Bedrooms: | 5 |
| Bathrooms: | 3.1 |
| Acreage: | 0.31 |
| Year Built: | 1979 |
| Type: | Single Family Residence |
| Virtual Tour: | Click here |
Based on information submitted to the MLS GRID as of 2026-04-29 00:00:00. All data is obtained from various sources and may not have been verified by broker or MLS GRID. Supplied Open House Information is subject to change without notice. All information should be independently reviewed and verified for accuracy. Properties may or may not be listed by the office/agent presenting the information. Some IDX listings have been excluded from this website.
Contact An Agent:












































