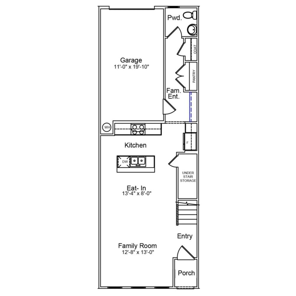
Discover the charm of this boutique townhome community built by Mungo Homes, a leader in quality craftsmanship & luxury design. This beautiful north-facing two-story townhome features 3 bedrooms, 2.5 baths, & a rear-entry one-car garage, double size driveway, offering an open-concept layout with stylish upgrades finishes throughout. The main floor boasts luxury vinyl plank flooring, creating a seamless flow through the bright & airy living spaces. The chef’s kitchen is a standout, featuring a large sitting island w/ Colonial White Granite countertop, White cabinetry, tile backsplash, pendant lighting, & SS electric appliances! Upstairs, the spacious primary suite impresses w/ a 10' boxed ceiling, generous walk-in closet, & a en suite bath w/ a quartz-topped dual vanity & a tiled walk-in shower. Two additional bedrooms, a full bath, & a convenient laundry closet complete the second level. Located just minutes from Uptown Charlotte, the airport, & shopping, Lakeview Village offers the perfect blend of style, comfort, & convenience. Ask about Move-in package & Financing Promotions! 2025 Parade of Homes GOLD Winner! Representative Photos Only - Home is under construction with completion estimated for June.
| MLS#: | 4355648 |
| Price: | $308,611 |
| Square Footage: | 1456 |
| Bedrooms: | 3 |
| Bathrooms: | 2.1 |
| Year Built: | 2026 |
| Type: | Townhouse |
Based on information submitted to the MLS GRID as of 2026-03-19 06:00:00. All data is obtained from various sources and may not have been verified by broker or MLS GRID. Supplied Open House Information is subject to change without notice. All information should be independently reviewed and verified for accuracy. Properties may or may not be listed by the office/agent presenting the information. Some IDX listings have been excluded from this website.
Contact An Agent:





















