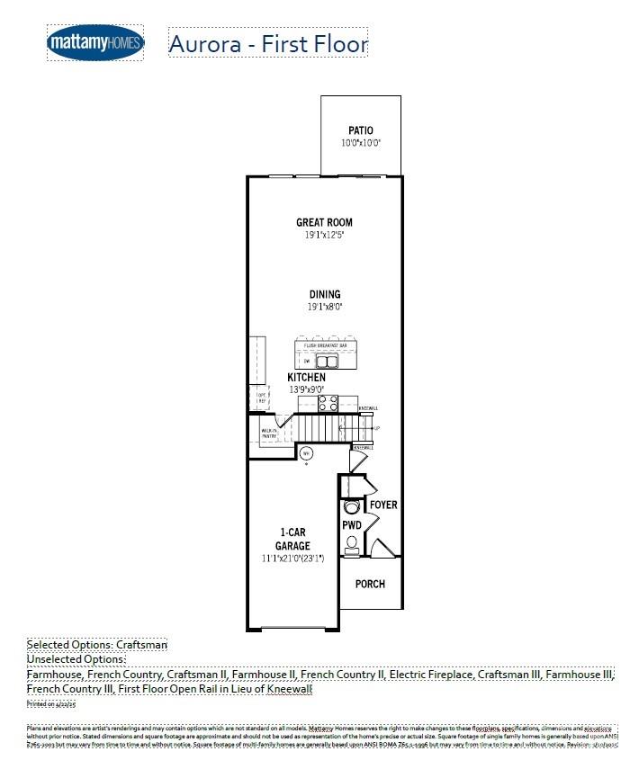
Welcome to the popular Aurora floorplan in the sought-after Stonesummit at Reedy Creek community. This well-designed townhome offers an open, functional layout with spacious living areas, abundant natural light, and modern finishes throughout. The seamless flow of the main living spaces is ideal for everyday living and entertaining. The upper level includes a private primary suite along with additional secondary bedrooms and bathrooms. Contemporary finishes and ample natural light enhance the home’s functional design. Conveniently located with easy access to Uptown Charlotte, shopping and dining in University City, live entertainment at PNC Music Pavilion, and outdoor recreation at Reedy Creek Nature Preserve and Park.
| MLS#: | 4353649 |
| Price: | $349,990 |
| Square Footage: | 1813 |
| Bedrooms: | 3 |
| Bathrooms: | 2.1 |
| Year Built: | 2026 |
| Type: | Townhouse |
Based on information submitted to the MLS GRID as of 2026-05-05 00:00:00. All data is obtained from various sources and may not have been verified by broker or MLS GRID. Supplied Open House Information is subject to change without notice. All information should be independently reviewed and verified for accuracy. Properties may or may not be listed by the office/agent presenting the information. Some IDX listings have been excluded from this website.
Contact An Agent:












