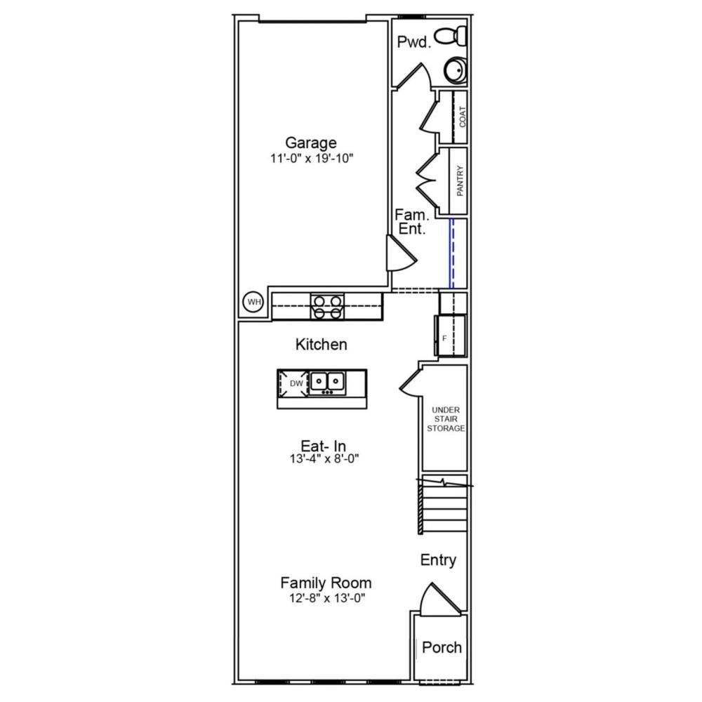
Discover the charm of this boutique townhome community built by Mungo Homes, a leader in quality craftsmanship & luxury design. This beautiful West-facing two-story townhome with court-yard entry features 3 bedrooms, 2.5 baths, & a rear-entry one-car garage, offering an open-concept layout w/ stylish upgrades finishes throughout. The main floor boasts luxury vinyl plank flooring, creating a seamless flow through the bright & airy living spaces. The chef’s kitchen is a standout, featuring a large sitting island w/ quartz countertop, stone-gray cabinetry, tile backsplash, pendant lighting, & SS electric appliances! Upstairs, the spacious primary suite impresses w/ a 10' boxed tray ceiling, generous walk-in closet, & a en-suite bath w/ a quartz-topped dual vanity & a tiled walk-in shower. Two additional bedrooms, a full bath, & a convenient laundry closet complete the second level. Located 10 minutes from Uptown Charlotte, the airport, & side-walk access to shopping at Target and Northlake Mall, Lakeview Village offers the perfect blend of style, comfort, & convenience. Ask about the included Move-in appliance package, Blinds, and Financing Promotions with seller paid closing costs! 2025 Parade of Homes GOLD Winner!
| MLS#: | 4349994 |
| Price: | $310,761 |
| Square Footage: | 1456 |
| Bedrooms: | 3 |
| Bathrooms: | 2.1 |
| Year Built: | 2025 |
| Type: | Townhouse |
Based on information submitted to the MLS GRID as of 2026-03-17 00:00:00. All data is obtained from various sources and may not have been verified by broker or MLS GRID. Supplied Open House Information is subject to change without notice. All information should be independently reviewed and verified for accuracy. Properties may or may not be listed by the office/agent presenting the information. Some IDX listings have been excluded from this website.
Contact An Agent:
































